统招代码:51043

国家重点中职、公办学校

招生电话

028-83507909

新闻资讯 校园新闻
通知公告 校园新闻 行业新闻
2025年度建筑专业技能竞赛决赛
来源:工贸校时间:2025-06-09阅读:2930次


建筑竞赛出成果 以赛促学育人才

——我校成功举办2025年度建筑专业技能竞赛决赛

 

2025年6月4日,我校成功举办第三届建筑专业技能竞赛决赛。经过为期两个月刻苦训练,参赛选手不断磨炼提高,终于形成丰硕的成果。他们把一丝不苟、精益求精的态度铸造成工匠精神的生动缩影,在赛场上展现朝气蓬勃的新生力量。当比赛落下帷幕,每位选手都收获了属于自己的荣誉与成长。

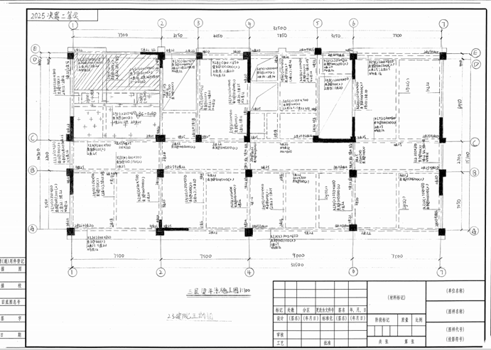
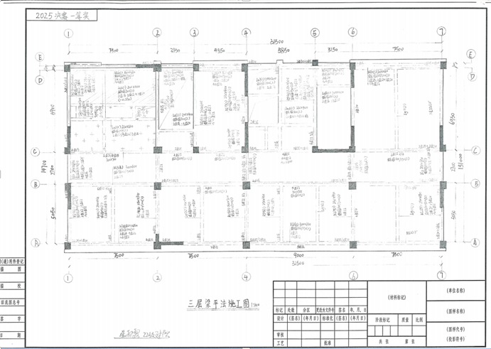
决赛现场精彩纷呈,回顾了选手们全神贯注、追逐完美的每一个瞬间,展示了选手们绘制结构施工图的制图硕果,展现了以专业角度解读梁平法施工图的青春风采。

本年度竞赛,学校为培育人才搭建了切磋技艺的舞台,工程教研室践行匠心铸就梦想的育人理念,唐玉姣老师负责竞赛组织与实施,同高函、孙鸿飞、李婧媛老师共同开展赛前培训指导,选手们相互鼓励、良性竞争,共同铸就了这场绝妙的技能盛宴。相信未来他们将书写辉煌篇章,用匠心与智慧点亮人生理想。

(撰稿:唐玉姣)

D:\SOFT_PHP_PACKAGE\phptmp\php54B3.tmp

D:\SOFT_PHP_PACKAGE\phptmp\php9CAA.tmp

D:\SOFT_PHP_PACKAGE\phptmp\phpD417.tmp

 

D:\SOFT_PHP_PACKAGE\phptmp\php5E6.tmp

D:\SOFT_PHP_PACKAGE\phptmp\phpB1F5.tmp

D:\SOFT_PHP_PACKAGE\phptmp\php43D6.tmp

D:\SOFT_PHP_PACKAGE\phptmp\php86FB.tmp